SM
Data Line Sensor Module
Full Lighting Controls - Sensor & Switch
SM(Data Line Sensor Module)은 ELC 통신네트워크에 데이타라인으로 연결되는 센서모듈이다.
하나의 SM은 4가지의 센서를 연결할 수 있다. 기본으로 재실감지기와 조도센서를 연결하고, 2개의 Digital Input 이 준비되어 있다. 이 SM에 연결된 재실감지기나 조도센서에 의해 각 조명제어반과 달리모듈을 연동 제어 가능하다.
하나의 SM은 4가지의 센서를 연결할 수 있다. 기본으로 재실감지기와 조도센서를 연결하고, 2개의 Digital Input 이 준비되어 있다. 이 SM에 연결된 재실감지기나 조도센서에 의해 각 조명제어반과 달리모듈을 연동 제어 가능하다.
Main Feature
…ELC 통신네트워크에 연결되는 센서모듈
…4가지의 센서 연결 : 기본 재실감지기와 조도센서 각 1개씩 연결되고, 2개의 Digital Input.
…1- 999 Address 로 하나의 ELC 네트워크에 최대 999개의 센서모듈 연결 가능.
…자체 동작에 대한 Enable과 Disable 선택 기능이 있음.
…센서 Interval 시간 설정기능
…4가지의 센서 연결 : 기본 재실감지기와 조도센서 각 1개씩 연결되고, 2개의 Digital Input.
…1- 999 Address 로 하나의 ELC 네트워크에 최대 999개의 센서모듈 연결 가능.
…자체 동작에 대한 Enable과 Disable 선택 기능이 있음.
…센서 Interval 시간 설정기능
Application
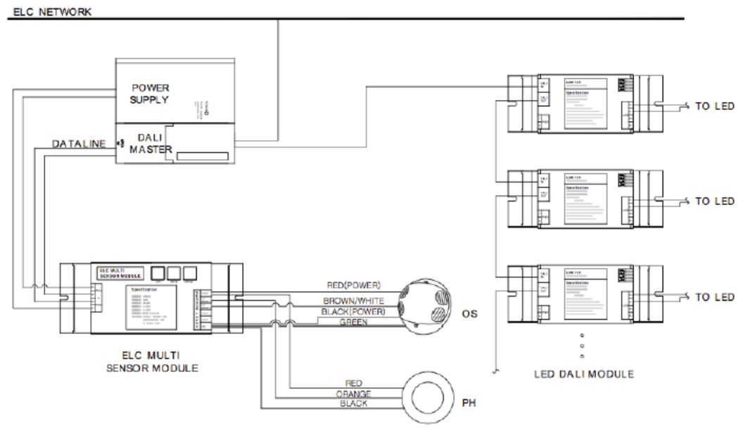
ELC통신 네트워크에 연결되어 적용가능한 센서모듈이다. 이 센서모듈에 연결된 조도센서나 재실감지기의 동작에 따라, 해당 조명제어반 또는 달리모듈을 연동 제어 가능하다.
이 센서모듈은 별도 2개의 Digital Input이 있어, 소방이나 방범기능의 접점과 연결되어 연동제어도 가능하다. 센서에 대한 배관배선이 각각 설치되었으나, 이 센서모듈을 적용할 경우, 데이타라인 하나의 라인만 연결하여 각 센서를 연결하여 사용가능하여, 배관배선의 비용이 절감된다.
이 센서모듈은 별도 2개의 Digital Input이 있어, 소방이나 방범기능의 접점과 연결되어 연동제어도 가능하다. 센서에 대한 배관배선이 각각 설치되었으나, 이 센서모듈을 적용할 경우, 데이타라인 하나의 라인만 연결하여 각 센서를 연결하여 사용가능하여, 배관배선의 비용이 절감된다.
Specification
Dimension of Layout
…Interface : ELC, SENSOR, DI
…Communication : ETLC Network
…Input Voltage : AC/DC 12V -24 V 350mA
…소비전류/전력 : 3mA / 72 mW
…Operating Temp. : 0 - 50°C
…Operating Humidity : 0 - 90%RH
…Sensor Input : Photo, Occupancy, Digital Input 2ea
…Operation Voltage : DC5V, 3.3V
…MCU : 32 bit Arm Processor
…Communication : ETLC Network
…Input Voltage : AC/DC 12V -24 V 350mA
…소비전류/전력 : 3mA / 72 mW
…Operating Temp. : 0 - 50°C
…Operating Humidity : 0 - 90%RH
…Sensor Input : Photo, Occupancy, Digital Input 2ea
…Operation Voltage : DC5V, 3.3V
…MCU : 32 bit Arm Processor

Connection Diagram

Categories
Date
Download
